Feedback

Do you already have an account? Log In

The Homes for Londoners search site is the Mayor of London's official platform for finding an affordable home in London and making your route to buying or renting in the capital as easy as possible. Registering means you can save properties while searching on-the-go, check your eligibility for homes and book open day viewings.

We collect personal information when you register. This enables us to create and administer your Homes for Londoners account and identify suitable properties based on the information you provide.

Registration also means that we can keep you updated on how your input helps to shape plans and policies. To read in full about how we use your information, please see our privacy policy.

Account info

Enter a valid email address. This will only be used if you want to receive a new password or marketing material or notifications by email. We will not make it public.

Please enter a valid mobile telephone number.

Password strength:

Create a password for your new account in both fields. Password must be at least 6 characters.

Living circumstances

Working circumstances

Extra information

Privacy

Here at Homes for Londoners we take your privacy seriously and will only use your personal information to administer your account, check your eligibility and to provide the products and services you have requested from us.

However, from time to time we would like to contact you with details of properties that we provide or list. We would also like to pass your details onto the Housing provider, so that they can contact you by email with further details about your application.

 

Enter your email addresss and we will send you a link to reset your password.

Enter a valid email address. This will only be used if you want to receive a new password or marketing material or notifications by email. We will not make it public.

Please confirm you are not a robot.

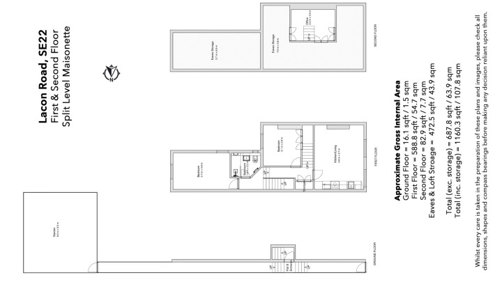
Lacon Road

Now available from The Period Property Specialists is a newly refurbished first and second floor period maisonette with 2 bedrooms, office and east facing rear garden. This Victorian conversion is prime SE22 and incredibly close to the popular amenities of Lordship Lane.

9 - Listing images
9 - Listing images
Scheme Private sale
Availability For sale
Full price from £599,995
Minimum deposit from £30,000
Service charge from £500
Council tax band C
Bedrooms 2
Bathrooms 1
Features
- Central heating
- Double Glazing
- On street/resident parking
- Rear Garden

Overview

Now available from The Period Property Specialists is a newly refurbished first and second floor period maisonette within a mid terrace Victorian building. The location is prime SE22 and incredibly close to the popular amenities of both North Cross Road and Lordship Lane.

This stunning maisonette comes with: two stylish double bedrooms; a sleek sun-filled kitchen/living area, full of character; a modern family bathroom; a quiet top floor office; over 43sqm of easily accessible eaves storage; and a 32sqm east facing rear landscaped garden. 

The split-level property also benefits from: restored period features throughout, including cast iron fireplaces, traditional radiators and plantation shutters; a modern designer kitchen including brand new integrated appliances and smart home devices, all with manufacturers warranties; permit free on street parking; and the option for a ground floor private cycle storage unit.

Furthermore it will be your home so you get to decide how it looks. Our Customised Design Service lets you add the finishing touches you want including kitchen, worktops, flooring, wall colour, wardrobe design, plus many more…all easily selected through our handy app.

Search 'TPPS Home Made For You' for further information. 

 

Local area information

East Dulwich

A wealth of restaurants, cafes, independent boutiques and galleries are all within walking distance on Lordship Lane and North Cross Road itself. 

The property is incredibly well connected by local transport links. East Dulwich station is within walking distance and along with Denmark Hill Railway Station, they offer overground services to London Victoria and London Bridge and Thameslink services to London St. Pancras International and London Blackfriars. Brixton Underground is just a 15 min bus ride west. 

Close